



Kontorslokal intill Kållereds station
Välkommen till denna kontorslokal med ett fantastiskt läge centralt i Kållered. Med stationen som granne kan du enkelt förflytta dig med både buss och tåg vart du än är på väg. Med tåg når du Mölndal på 4 minuter och Göteborgs Central på 13 minuter. Åker du söderut är du i Kungsbacka inom 13 minuter.
Om fastigheten
Fastigheten är belägen i Mölndals Kommun. I området finns bibliotek, vårdcentral, restauranger, livsmedelsbutiker, fritidsgård och härliga grönytor.
Kommunikationer
Bra buss- och pendeltågsförbindelser.
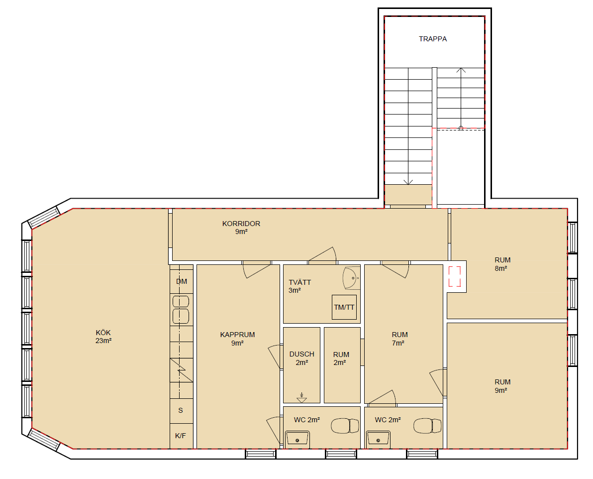
Planritning

×
Kontakta oss
Videofönster
Skippa videobeskrivningen
Slut på beskrivningen